|
|
|
||||||||||||||||||
少しだけ、世界から離れる |
||||||||||||||||||||
|
||||||||||||||||||||
|
||||||||||||||||||||
|
||||||||||||||||||||
|
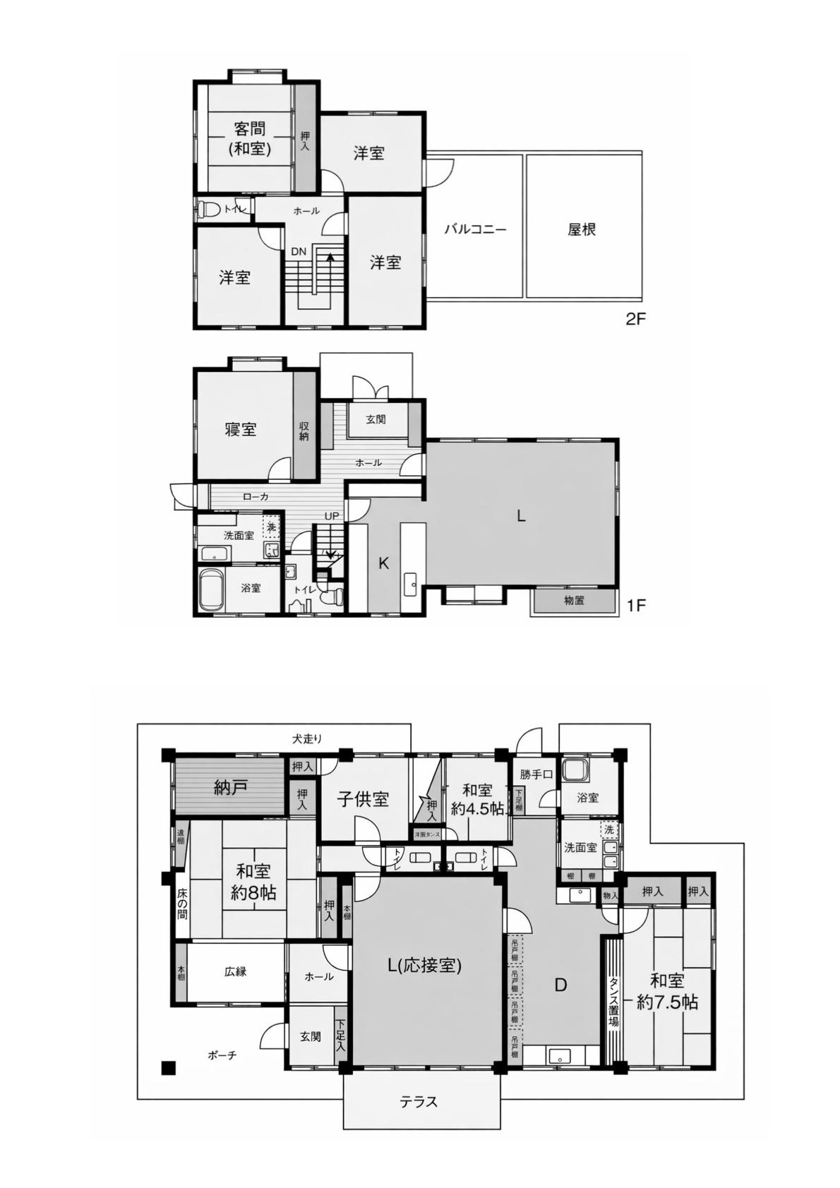
僕が今宿エリアを愛して、早10年。ついに、ずっと気になっていたお家をご縁があり、ご紹介できることになりました。 高嶺の花、雲の上の存在。勝手ながら、僕にとってはそんな距離感を保ち続けてきた物件です。 生の松原から今宿へ向かう海沿いの道。あの気持ちのいい道の途中に、ふと現れる脇道を上がっていくと、この場所に辿り着きます。目的がなければまず入ることのない、いわば知る人ぞ知る領域。 敷地内に一歩入ると、視界が大きくひらけます。目の前に広がるのは、長垂海浜公園から今津橋へと続く、今宿らしい穏やかな海の風景。どこまでも水平線を感じられるこの抜けは、いわゆるオーシャンビューとは一線を画すもの。あえて名前をつけるなら、グランドオーシャンビュー。少し大げさな呼び方も、この景色の前では不思議としっくりきます。 そして、驚くことに敷地内には建物が3棟もあること。 2階建の母屋は、しっかりとした構えを持ちながらも、景色を受け止め、自然に身を委ねるような佇まい。並ぶように建つもう一棟は平家建で、広い庭と緩やかにつながる関係性が心地いい。そしてもう一棟は約53平米とコンパクトながら、使い方次第でこの場所の可能性をさらに広げてくれる存在です。 例えば、住まいと仕事をゆるやかに分ける。あるいは家族それぞれの居場所を持つ。もしくは、誰かを招き入れる余白として開いていく。ここでは「住む」という行為が、より自由で、立体的なものに変わっていきます。 何より、この場所の魅力は余白にあります。広大な敷地、美しい景色、風の抜け、光の入り方。手を加えすぎず、そのままを受け入れるだけでも成立するし、時間をかけて自分なりに整えていく楽しみもある。 簡単に手が届く物件ではありません。でも、だからこそ、この場所はこれまで守られてきたとも言えます。いつか、こんな場所で暮らしてみたい。そう思わせてくれる力が、この物件にはあります。 そして今回、そのいつかに手を伸ばせるタイミングが巡ってきたのかもしれません。 |
![]() |
|
| 空・海・緑とすべてが一度に視界に入ります。 |
|
| かなりゆとりある敷地。のんびりと時が流れていきます。 |
|
| 敷地内に建物は3棟あり、まずはこちらの建物から。 |
|
| 窓が多く、緑がたくさん視界に入るリビング。 |
|
|
| 価格 | 2億7,000万円 | 建物面積 | 164.48㎡ |
| 管理費 | なし | 修繕積立金 | なし |
| 所在地 | 福岡市西区今宿青木 | ||
| 交通 | JR筑肥線「今宿」駅 徒歩19分 | ||
| 建物構造 | 鉄筋コンクリート造 2階建て | 所在階 | 1-2階 |
| 築年 | 1985年 | 土地権利 | 所有権 |
| 敷地面積 | 2,359.97㎡ | 都市計画 | 調整区域 |
| 用途地域 | 建蔽率/容積率 | 40%/50% | |
| その他費用 | 取引態様 | 媒介 | |
| 設備 | プロパンガス/システムキッチン/IHクッキングヒーター(3口)/浄化槽 | ||
| 備考 | ペット可/現況:居住中/引渡時期:相談/校区:福岡市立今宿小学校(1,600m)、福岡市立玄洋中学校(2,400m)/(建物2)鉄筋コンクリート造陸屋根平家建 130.23平米 昭和41年新築/(建物3)軽量鉄骨造亜鉛メッキ銅板葺平家建 53.53平米 昭和42年新築/住居兼事務所可/駐車場あり | ||
| 情報修正日時 | 2026年4月1日 | 情報更新予定日 | 2026年4月24日 |
あなたにおすすめの物件


