|
|
|
||||||||||||||||||
暮らしを企てる |
||||||||||||||||||||
|
||||||||||||||||||||
|
||||||||||||||||||||
|
||||||||||||||||||||
|
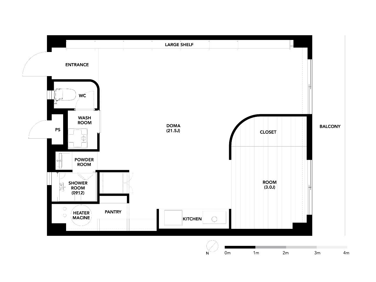
この部屋、かなり潔い。 量産型のリノベが増えた昨今、その流れとは別のところで勝負している一室。手がけたのはホテルなども扱う建築家。整えるというより、骨格から組み立て直したようなリノベーションです。 間取りは1LDK。ただしLDKはまるごと土間。床はラフなコンクリート、天井は梁や配管をそのまま見せる構成。そこで効いてくるのが、壁一面の造作棚です。奥行きと段数がきちんとあり、暮らしの道具も本も受け止めてくれる器になっています。 アールの壁とアーチの開口もポイント。硬くなりがちな土間空間に、やわらかな視線の流れをつくる存在です。アーチの先は床材が切り替わり、同じワンフロアの中にきちんと居場所が生まれている。素材は多いのに散らからない。このバランス感覚が、この部屋のいちばんの見どころかもしれません。 1階で庭付きというのも、この部屋らしい条件です。閉じるというより、ゆるやかにひらく庭です。ガーデニングを楽しむのもいいですし、ペット可なので、愛犬の小さな遊び場として整えるのも自然。土間と庭がつながることで、暮らしの動きに広がりが出ます。 万人向けではありませんが、刺さる人にはぶっ刺さる感じ。この広い土間も、ただのデザインではありません。大きなダイニングを置いて友人を招いたり、趣味の自転車をそのまま持ち込みインテリアとして飾ったり。暮らしの発想が広がる余白が、きちんと用意されています。 能動的に自分の好きなことを楽しみながら、自分の感性を満たす。住むというより、暮らしを企てる。そんな使い方が似合います。 |
![]() |
|
| 刺さる方にはきっと刺さるはず。 |
|
| 1階の庭付きの区画になります。 |
|
| コンパクトですが個性的なお部屋。 |
|
| 遊び心を感じさせるR壁+アーチ開口 |
|
|
| 価格 | 2,480万円 | 専有面積 | 50.17㎡ |
| 管理費 | 8,200円 | 修繕積立金 | 5,000円 ※将来10,000円に値上がりの予定あり |
| 所在地 | 福岡市南区向野 | ||
| 交通 |
西鉄天神大牟田線「大橋」駅 徒歩7分 JR鹿児島本線「竹下」駅 徒歩14分 |
||
| 建物構造 | 鉄筋コンクリート造/陸屋根 6階建て | 所在階 | 1階 |
| 築年 | 1983年 | 土地権利 | 所有権 |
| 面積 | 都市計画 | 市街化区域 | |
| 用途地域 | 建蔽率/容積率 | ||
| その他費用 | 取引態様 | 媒介 | |
| 設備 | オール電化/システムキッチン(3口コンロ)/温水洗浄便座/シャワールーム/TVモニター付きインターフォン/エレベーター | ||
| 備考 | ペット可(犬(室内犬、階段などで抱きかえることのできるサイズ)、猫 ※事前承認要)/管理会社:新日本ネットワーク株式会社/管理形態:全部委託/総戸数:32戸/現況:空室/引渡時期:即可/事務所不可/敷地内駐車場:空無/駐輪場/バイク置場:有※50ccに限る/校区:福岡市立玉川小学校(300m)、福岡市立春吉中学校(550m)/駅徒歩10分以内 | ||
| 情報修正日時 | 2026年3月13日 | 情報更新予定日 | 2026年3月27日 |
あなたにおすすめの物件


