|
|
|
||||||||||||||||||
都会の森に迷い込んで |
||||||||||||||||||||
|
||||||||||||||||||||
|
||||||||||||||||||||
|
||||||||||||||||||||
|
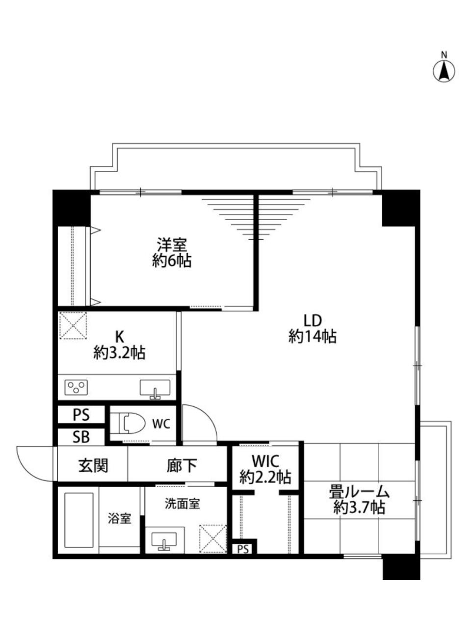
けやき通りから一本、二本。赤坂緑地のほうへ入っていくと、街の気配がすっと薄くなっていきます。航空写真で見ると、緑の中にぽっかり空いたみたいな場所があって、今回の建物はそこにあります。 敷地の横は緑地。視界が緑で埋まる感じです。ここまで来ると、中央区だったことを忘れますね。撮影は真冬でしたが、それでもこの密度なら、葉が揃う季節はだいぶ強いはず。 室内はフルリノベーション済み。ポイントは間取りの割り切り方で、約65㎡の中で寝室と、それ以外の大きな空間を思い切って分けています。部屋数を増やして万人向けにするというより、ターゲットをぐっと絞っているタイプ。刺さる人には、ちゃんと刺さると思います。 デザインも、周りの環境に合わせて馴染ませている印象でした。派手に盛るというより、素材や納まりで勝負している感じ。細部に手を入れているのが分かります。 窓の外は至近距離で緑が立ち上がっていて、天然のブラインドみたいな状態です。日差しが燦々と入るタイプではありませんが、暗いわけでもなく、どこか窓まわりが落ち着きます。 ただ、自然との距離が近いため、虫とはある程度付き合う前提にはなります。夜は街灯はあるのですが、都会では珍しい暗さがあります。マンション手前の4、50メートルくらいは、やや鬱蒼とした緑の中を抜けるアプローチ。夜道の感じは、一度見ておくと安心かと。 街のすぐそばで森みたいな環境を日常にできる、そんな価値が分かる人には、都会の森に迷い込んだみたいな感覚がふとした瞬間に続いていく一室です。 |
![]() |
|
| 窓からは押し寄せるほどの緑。 |
|
| 都会の森に迷い込んだ錯覚に陥ります。 |
|
| 大胆にリビングは広く! |
|
| 奥はキッチン。建具もかわいいです。 |
|
|
| 価格 | 5,280万円 | 専有面積 | 65.61㎡ |
| 管理費 | 9,100円 | 修繕積立金 | 15,500円 |
| 所在地 | 福岡市中央区赤坂 | ||
| 交通 |
福岡市七隈線「桜坂」駅 徒歩10分 福岡市空港線「赤坂」駅 徒歩15分 |
||
| 建物構造 | 鉄筋コンクリート造 5階建て | 所在階 | 3階 |
| 築年 | 1994年 | 土地権利 | 所有権 |
| 面積 | 都市計画 | 市街化区域 | |
| 用途地域 | 第一種住居地域 | 建蔽率/容積率 | |
| その他費用 | 町内会費 月額:250円 | 取引態様 | 媒介 |
| 設備 | 都市ガス/システムキッチン(3口コンロ)/追い焚き/浴室乾燥機/温水洗浄便座/ウォークインクローゼット/TVモニター付きインターフォン/エレベーター/オートロック/防犯カメラ/宅配ボックス | ||
| 備考 | ペット不可/管理会社:穴吹ハウジングサービス/管理形態:全部委託/総戸数:20戸/バルコニー面積:7.48㎡/現況:空室/引渡時期:即可/事務所不可/駐輪場/校区:福岡市立赤坂小学校(734m)、福岡市立警固中学校(977m)/駐車場あり(11,000円/月)/駅徒歩10分以内 | ||
| 情報修正日時 | 2026年1月30日 | 情報更新予定日 | 2026年2月14日 |
あなたにおすすめの物件


