|
|
|
||||||||||||||||||
表の顔と、裏の顔。 |
||||||||||||||||||||
|
||||||||||||||||||||
|
||||||||||||||||||||
|
||||||||||||||||||||
|
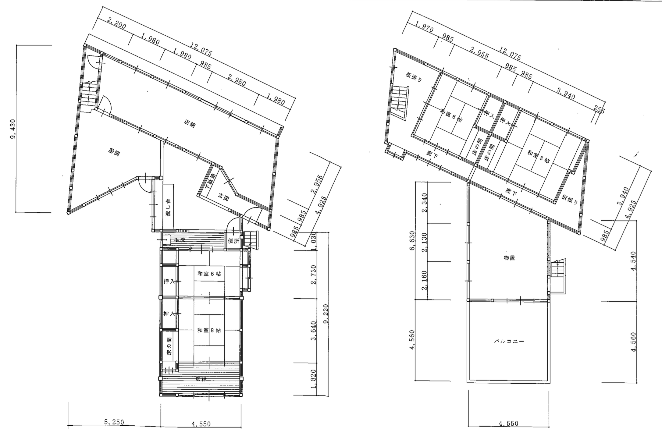
八女の町並みに溶け込む、昔ながらの伝統建築。 でも、この建物の魅力は外観だけではありません。通りに向いた「表の顔」と、背面に広がる「裏の顔」を持っています。 立地は、日本有数の藤棚として知られる黒木の大藤の斜向かい。藤まつりの時期には、例年約20万人が訪れる場所です。季節になると、このあたり一帯が一気ににぎやかになり、「八女ってこんなに人がいたんだ!」と思うほど。そんな人混みのすぐそばで、2階の窓からは誰にも邪魔されずに藤棚を眺められる。なかなかの特等席です。 裏手に回ると、建物のほぼ真裏が一級河川の矢部川。川に面する建物は周辺でもごくわずかで、感覚としてはほぼプライベートリバーです。夏には矢部川花火大会があり、打ち上げ場所もすぐそば。川越しに見る花火は音も光もダイレクトに届きます。 川のある景色は一年を通して気持ちよく、春は藤、夏は花火と、季節ごとの楽しみが自然と重なります。 通り側は、横に長い間口をもつ昔ながらの店構え。中に入ると、奥に細長く続く鰻の寝床。玄関を上がると和室が二間、その先に縁側があり、にぎやかな通りから、気づけばぐっと静かな空気に切り替わります。 二階も同じく細長く、廊下に沿って和室が点在。部屋ごとに景色やサイズが少しずつ違い、使い方を決めすぎず、過ごし方に合わせて楽しめそうです。 伝統的建造物群保存地区に建つため、何でも自由に変えられるわけではありません。ただ、屋根や外装、建具など外まわりを中心に2017年に改修工事が入っており、構造的な部分はきちんと整っています。設備や内装はこれから手を入れる必要がありますが、古い建物に対して抱きがちな不安は比較的少ない状態です。 今、もし同じものを一からつくろうとしたらどうでしょう。この材料、この佇まい、この景色、藤棚や矢部川との距離感。どれも、今から再現できるものではありません。だからこそ、この場所には価格やスペックでは測れない価値があります。 世界的に抹茶への関心が高まり、八女にも海外から抹茶を求めて人が訪れています。そんな人たちを、この景色と建物に招いて、ただゆっくり過ごしてもらう。民泊や滞在拠点として考えても、相性はかなり良さそうです。便利さよりも、体験や記憶に残る時間を大事にしたい人に、きっと響くはず。 |
![]() |
|
| 堂々とした構えです。 |
|
| 室内は奥へと細長く続く、鰻の寝床のつくり |
|
| 室内と外のコントラストがきれいです。 |
|
| 縁側の先には矢部川。 |
|
|
| 価格 | 1,900万円 | 建物面積 | 227.52㎡ |
| 管理費 | なし | 修繕積立金 | なし |
| 所在地 | 八女市黒木町黒木字上黒木 | ||
| 交通 | 堀川バス羽矢線「黒木」駅 徒歩11分 | ||
| 建物構造 | 木・鉄骨造陸屋根 地下1階付き 3階建て | 所在階 | 地下1-3階 |
| 築年 | 1951年 | 土地権利 | 所有権 |
| 敷地面積 | 175.76㎡ | 都市計画 | 市街化区域 |
| 用途地域 | 商業地域 | 建蔽率/容積率 | 80%/400% |
| その他費用 | 取引態様 | 媒介 | |
| 設備 | プロパンガス/上水/電気/浄化槽/キッチン(ガスコンロ設置可)/トイレ | ||
| 備考 | ペット可/地目:宅地/現況:空室/引渡時期:相談/校区:八女市立黒木小学校(950m)、八女市立黒木中学校(550m)/飲食店可/住居兼事務所可/シェア可 | ||
| 情報修正日時 | 2026年1月13日 | 情報更新予定日 | 2026年1月31日 |
あなたにおすすめの物件


