|
|
|||||||||||||||||||
ちょこんと一軒家 |
||||||||||||||||||||
|
||||||||||||||||||||
|
||||||||||||||||||||
|
||||||||||||||||||||
|
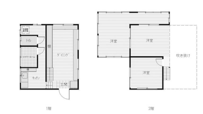
糸島市志摩にある「ラウベンコロニー」、都会の喧騒から離れ、自然との調和を目指す場所として、なんと昭和43年からスタートした歴史ある別荘地です。 呼び名の由来はドイツに実在する地名Laubenにちなんでおり、ドイツ語で「LAUB」は「木についている葉っぱ全体(集合名詞)」のことで、ラウベンコロニーとは照葉樹林の中にある小別荘の集落という意味合い。 そんな自然に恵まれた環境の中にある、ポツンと一軒家を発見しました。アトリエのような、秘密基地のような、なんだかワクワクするサイズ感。 このままでも十分ですが、週末にちょろっとDIYをして、自分の理想をコツコツ作っていくスタイルが楽しそう。窓の外に見える緑と海を活かした、空間を作り上げてほしいところ。 室内は3LDKの間取りで、ログハウスのような木の内装。リビングの吹き抜けが心地よい空間。対象的に、キッチン部分の天井が低く、175cm以上ある方は、歩くときに首を曲げる必要があります。なんだか楽しくなって、、、きてないか?? セカンドハウス、アトリエ、趣味部屋ならぬ趣味家。型にハマらない発想をお持ちの方。この戸建をどうやって楽しみますか? 「なんだか楽しそう。」と盛り上がっているところ申し訳ありませんが、いくつか注意点があり、下に箇条書きしています。じっくり読んでからのお問い合わせをお願いします。 ※本物件は、別荘地内にある物件になります。 ※登記簿床面積:43.78㎡(現況:約53.8㎡増築未登記部分あり) ※敷地内駐車場無(一時駐車は志摩ラウベンコロニー共用施設の駐車場が利用できます。但し、建て替え時等は、物件敷地内での駐車場設置を求められます。) ※土地は傾斜地になり建築時にはがけ条例の規制が適用されます ※志摩ラウベンコロニー地区地区計画区域内につき、地区計画に定められた利用範囲内で再建築可能です ※志摩ラウベンコロニー管理組合への加入が必須となります(面談あり) |
![]() |
|
| 別荘地専用のプライベートビーチになります。 |
|
| ログハウスのような内装 |
|
|
| 吹き抜けってワクワクしませんか? |
|
|
| 価格 | 1,000万円 | 建物面積 | 43.78㎡ |
| 管理費 | なし | 修繕積立金 | なし |
| 所在地 | 糸島市志摩船越 | ||
| 交通 | 昭和バス「船越」停 徒歩20分 | ||
| 建物構造 | 木造 2階建て | 所在階 | 1-2階 |
| 築年 | 1971年 | 土地権利 | 所有権 |
| 敷地面積 | 394.84㎡ | 都市計画 | 調整区域 |
| 用途地域 | 建蔽率/容積率 | ||
| その他費用 | 組合費:月額:13,320円/水道基本料:月額:1,200円 | 取引態様 | 媒介 |
| 設備 | プロパンガス/電気/上水道/温水洗浄便座 | ||
| 備考 | ペット可/地目:宅地/現況:空室/引渡時期:相談/公簿売買/現状渡し/契約不適合責任免責/管理組合加入金:10万円/水道加入金:15万円/住居兼事務所可 | ||
| 情報修正日時 | 2025年10月24日 | 情報更新予定日 | 2025年12月24日 |
あなたにおすすめの物件


