|
|
|||||||||||||||||||||
昭和マンション、オニューな一室 |
||||||||||||||||||||||
|
||||||||||||||||||||||
|
||||||||||||||||||||||
|
||||||||||||||||||||||
|
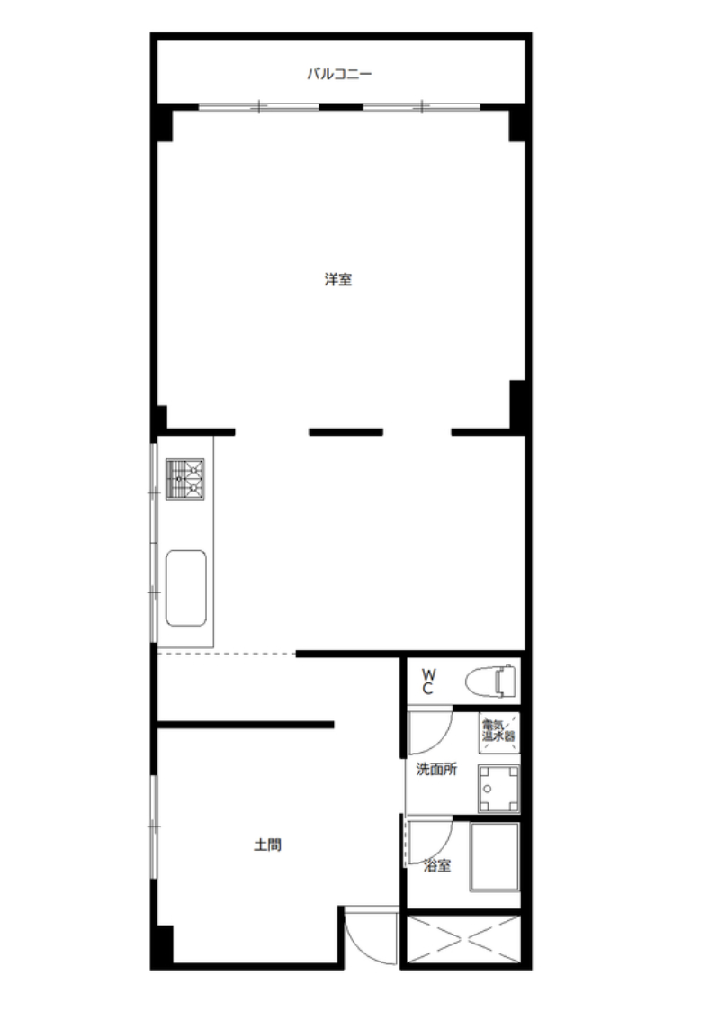
外観からしてレトロで、とても好きなマンション。これまでにも何度かご紹介してきました。正直、間取りもだいたい分かっているつもりだったんですが...こんな部屋があったなんて! ここの間取りといえば、和室が二間にリビング。いわゆるTHE昭和なつくりのはずなんですが、この部屋は、全然違いました。 まず扉を開けると出迎えてくれるのは、ゆったりとした土間スペース。玄関というより、一つのお部屋みたいな感覚です。奥にはすりガラスの仕切り。やわらかく光を通しながら、向こう側の気配をほんのり感じさせてくれます。 水回りはその土間の近くにまとまっていて、動線もシンプル。そして、すりガラスの先にリビングが続いていきます。 この部屋、実は脱衣所以外に扉がひとつもありません。すべて壁で、ゆるやかに区切られているだけ。つながっていながら死角があってなんだか落ち着く、絶妙な塞ぎ具合。 キッチンも、あまり見かけない、少しヴィンテージ感のあるデザインで、レトロモダンな雰囲気。かっこよさと可愛さのバランスがちょうどいいんです。窓の向こうには、桜坂らしい緑が少しだけのぞいていて、そこも含めてこのキッチンがとっても好きでした。 そういえば、ここはもともと、リビングと和室二間だったはず。見慣れた間取りが、頭の中にぼんやり浮かびます。その二間は、今ではひとつの大きな空間に。仕切りをなくしたことで、光も風もすっと抜けていきます。 最上階の角部屋ということもあって、日当たりもかなり良好。ベランダからは、桜坂から六本松の方まで、気持ちよく抜けた景色が広がります。 この建物に、こんなふうにデザインされた部屋があったなんて。ちょっとした驚きでした。もちろん、昔ながらの部屋も好きだけれど。こういうデザイン性のある一室も、やっぱり惹かれます。 見つけてしまった、という感じ。気になる方は、お早めに。 |
![]() |
|
| 土間とリビングをゆるやかにつなぐ、すりガラスの仕切り。 |
|
| 結構な広さがあります。 |
|
| 洗面や浴室などの水回りはこちらに集結。 |
|
| すりガラスの奥にはキッチンが。 |
|
|
| 賃料 | 11万円 | 専有面積 | 70.03㎡ |
| 敷金 | なし | 礼金 | 1ヶ月 |
| 償却 | なし | 共益費 | 3,000円 |
| 所在地 | 福岡市中央区桜坂 | ||
| 交通 | 地下鉄七隈線「桜坂」駅 徒歩3分 | ||
| 建物構造 | 鉄筋コンクリート造 6階建て | 所在階 | 6階 |
| 築年 | 1983年 | 取引態様 | 媒介 |
| 設備 | 都市ガス/システムキッチン(3口コンロ)/温水洗浄便座/エレベーター/宅配BOX | ||
| 備考 | ペット不可/町費(月額):250円/雑費(月額):880円(税込)/募集戸数:1戸/駐輪場/事務所使用不可//校区:福岡市立赤坂小学校(1,200m)、福岡市立警固中学校(1,200m)/駐車場あり(空きあり(13,200円/月))/駅徒歩10分以内/要火災保険契約 | ||
| 情報修正日時 | 2026年3月25日 | 情報更新予定日 | 2026年4月24日 |
あなたにおすすめの物件


