|
|
|
||||||||||||||||||||
雑居に羽ばたく青い鳥 |
||||||||||||||||||||||
|
||||||||||||||||||||||
|
||||||||||||||||||||||
|
||||||||||||||||||||||
|
有名なプロジェクトで旅館から生まれ変わったこちらのマンション。レトロマンションマニアであれば、この青い鳥のマークを見るだけでピンとくるでしょう。 1階と2階がテナント区画で、3階以降は住居区画になっており、バーやカレー屋さんなど目を惹くお店が集まる知る人ぞ知る隠れ家的スポットです。 共用部から醸し出す雑居な雰囲気が、この物件の真骨頂。それゆえに好みは分かれますが、レトロ好きにはたまらない風格がそこにはあります。 今回は2階のテナント区画の募集です。飲食店はNGとのことなので、物販店舗やクリエイティブな業種の事務所などに向きそう。 その主役はスコンと抜けるリバービュー。ゆったり流れる那珂川の恩恵なのか分かりませんが、思いのほか室内もゆったりとした時間が流れているような気がします。 基本的には現況での引き渡し。配管剥き出しの天井にライティングレール、漆喰壁、フローリングという素材としては良い感じです。そんなに内装を作りこみすぎなくても、所々お好みで変えるくらいで十分に使用できそうですね。 建物に描かれているトレードマークの青い鳥。軽やかに自由に大空を飛び回るそんな鳥たちのように、悠々自適に仕事をされる方に出会ってほしい物件です。 |
![]() |
|
| 飛び回る鳥たち。 |
|
| 那珂川の穏やかな流れを感じます。 |
|
| 元々事務所で利用されていたとのこと。現状での引き渡しとなります。 |
|
| 天井も配管剥き出し。 |
|
|
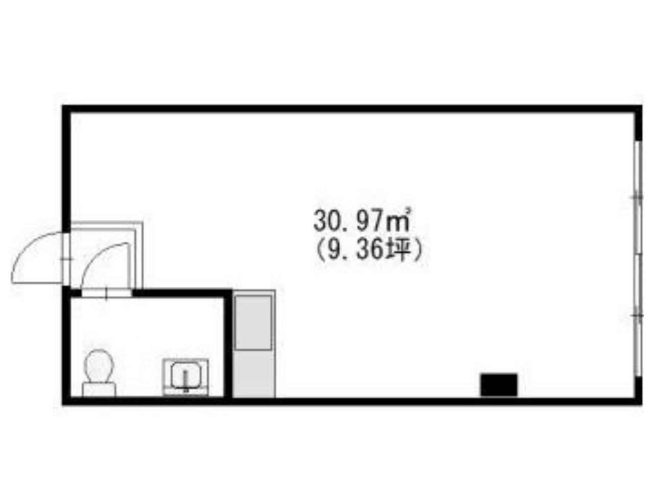
| 賃料 | 6万6,000円 | 専有面積 | 30.97㎡ |
| 敷金 | 3ヶ月 | 礼金 | なし |
| 償却 | なし | 共益費 | なし |
| 所在地 | 福岡市中央区清川 | ||
| 交通 | 地下鉄七隈線「渡辺通」駅 徒歩9分 | ||
| 建物構造 | 鉄筋コンクリート造 4階建て | 所在階 | 2階 |
| 築年 | 1973年 | 取引態様 | 媒介 |
| 設備 | プロパンガス/トイレ | ||
| 備考 | 定期借家契約(期間:4年)/飲食店不可/駅徒歩10分以内/要火災保険契約 | ||
| 情報修正日時 | 2026年1月30日 | 情報更新予定日 | 2026年2月14日 |
あなたにおすすめの物件


