|
|
|
||||||||||||||||||||
とりあえず駅前で小さくやってみる? |
||||||||||||||||||||||
|
||||||||||||||||||||||
|
||||||||||||||||||||||
|
||||||||||||||||||||||
|
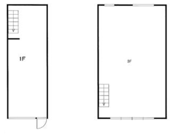
門司エリアで小さな販売店を始めたい方へ。住居スペース付き店舗のご紹介です。 門司港が観光の街だとしたら、門司駅周辺は“暮らす街”。駅周辺はマンション開発が進み、居住人口も増加傾向。商店街には味わい深い飲食店も点在し、日常のにぎわいがあるエリアです。 そんな門司駅の南口を出てすぐ目の前。視認性の高い立地で、1階テナントを募集中です。 以前はスイーツの販売店として使われていた区画。歩道に面した窓から商品を提供できる造りになっており、テイクアウト業態との相性は良さそうです。 1階は仕切りを挟んで2つのスペースに分かれており、手前を販売・提供スペース、奥を仕込みや作業場として使い分けることが可能。さらに、1階奥には今後トイレや水回りを設置予定とのことです。 そしてこの物件のもう一つの特徴が、3階部分。かなり年季の入った、味わい深い住居スペースが付いています。現状のまま快適に住むには手直しが必要そうですが、手を加えれば「上に暮らす」という使い方も視野に入ります。 駅徒歩1分という立地で、店舗兼住居として使える物件は希少。 家賃を抑えながら、小さく商いを始めたい方には面白い選択肢かもしれません。 門司駅前で、自分の店を持つ挑戦をしてみませんか。 ※DIY/工事をする場合は、オーナーさんと要事前相談。 |
![]() |
|
| 窓から提供可能! |
|
| 以前はスイーツの販売店だったそうです。 |
|
| 路面側から。人を呼び寄せるのに工夫のしがいがあります |
|
| 右手にはすぐ駅が。駅から徒歩1分の好立地です |
|
|
| 賃料 | 6万6,000円 | 専有面積 | 75㎡ |
| 敷金 | 1ヶ月 | 礼金 | 2ヶ月 |
| 償却 | なし | 共益費 | なし |
| 所在地 | 北九州市門司区中町 | ||
| 交通 | JR鹿児島本線「門司」駅 徒歩1分 | ||
| 建物構造 | 鉄筋コンクリート造 3階建て | 所在階 | 1.3階 |
| 築年 | 1955年 | 取引態様 | 媒介 |
| 設備 | 都市ガス/エアコン | ||
| 備考 | ペット不可/募集戸数:1戸/駐車場無し/2Fは階段のみ/飲食店可/住居兼事務所可/駅徒歩10分以内/要火災保険契約 | ||
| 情報修正日時 | 2026年3月1日 | 情報更新予定日 | 2026年3月26日 |
あなたにおすすめの物件


