|
|
|
||||||||||||||||||||
波の音を追いかけて |
||||||||||||||||||||||
|
||||||||||||||||||||||
|
||||||||||||||||||||||
|
||||||||||||||||||||||
|
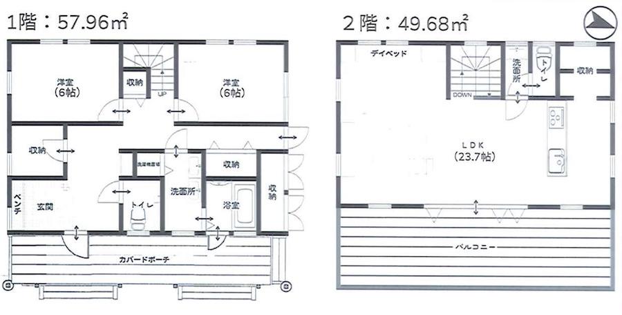
ついに!福岡Rに宮崎県の物件が登場です。 宮崎は温暖な気候に恵まれ、冬でも比較的暖かいエリア。プロ野球のキャンプ地としても知られており、現地で出会う人たちは皆さん穏やかで、県外の人にもとてもウェルカムな印象でした。 そして宮崎と言えば、そう「サーファーの聖地」。 私自身、サーフィン未経験なのですが、海を目の前にして思わず「これはいい波だ」と口にしていました。波のうねり、潮風の香り、水平線の向こうに沈む夕日。全国からこの地に惹かれる理由が、少しわかった気がします。 そんな場所に、まるでカリフォルニアの海辺に立つようなお洒落な戸建。施工を手がけたのは、全国的にも知られる「カリフォルニア」と言えば・・・の工務店さん。 妥協は一切なく、こだわりの素材をとことん使用し、どこを切り取っても本場さながらの雰囲気を楽しめます。 玄関前のカバードポーチが個人的に大好き。ソファを置いて昼間からビールを飲み、そのまま風に吹かれてお昼寝。そんな過ごし方が似合う場所です。2階のバルコニーもほどよく広く、夕暮れ時にへべすサワー(宮崎と言えば!!)を片手に、風を感じながら過ごすのも最高。 ちなみに内装に合わせたこだわりの家具・家電がそのままついてきます。写真とは違うものがあるため、内覧の際にご確認をお願いします。 そして、この家にはもう一つの顔があります。 旅館業許可を取得済みのため、365日宿泊施設としての運用が可能。旅人を迎える宿として、あるいは自分のセカンドハウスとして。波の音を聞きながら過ごす日常が、ここにはあります。 きっとこの家は、「暮らす」と「旅する」のあいだにある場所。 訪れるたびに心がほどけ、いつのまにか帰りたくないと思ってしまう。 そんな時間を、宮崎の風・・・いや波が、そっと運んできてくれるのかもしれません。 ※室内にある家具・家電は内覧の際にご確認ください。 ※旅館業取得済みのため、365日旅館営業可能。 ※掲載写真は新築当時のものです。 |
![]() |
|
| 西海岸な内装でお洒落。 |
|
| ゆったりと広めのバルコニー |
|
| なんとこの家具・家電そのままついてきます。 |
|
| 窓を全開にすると青い海!! |
|
|
| 賃料 | 19万8,000円(税込) | 専有面積 | 107.64㎡ |
| 敷金 | 2ヶ月 | 礼金 | 1ヶ月 |
| 償却 | なし | 管理費 | なし |
| 所在地 | 宮崎県日向市大字平岩久保田 | ||
| 交通 | JR日豊本線「南日向」駅 徒歩7分 | ||
| 建物構造 | 木造 2階建て | 所在階 | 1-2階 |
| 築年 | 2020年 | 取引態様 | 媒介 |
| 設備 | プロパンガス/システムキッチン(IHクッキングヒーター)/追い焚き/温水洗浄便座 | ||
| 備考 | ペット不可/定期借家契約(期間:5/再契約:相談)/募集戸数:1戸/旅館業許可取得済み/家具・家電付き/駐車場あり/駅徒歩10分以内/要火災保険契約 | ||
| 情報修正日時 | 2025年11月8日 | 情報更新予定日 | 2025年11月22日 |
あなたにおすすめの物件


