|
|
|
||||||||||||||||||||
ルーバルを手懐けろ |
||||||||||||||||||||||
|
||||||||||||||||||||||
|
||||||||||||||||||||||
|
||||||||||||||||||||||
|
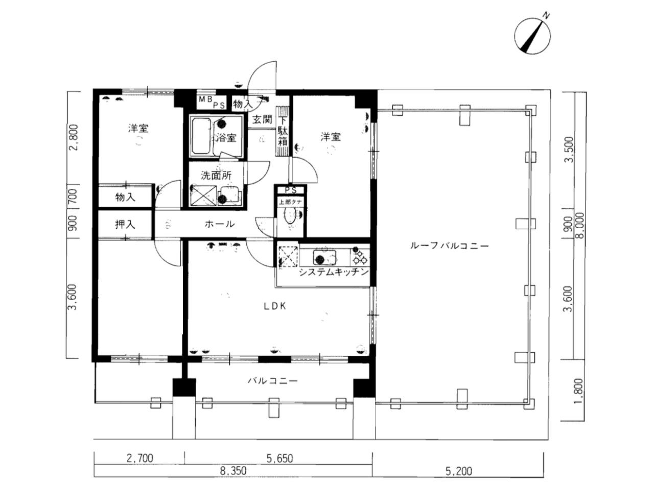
西鉄大橋駅から徒歩圏内。幹線道路から少し入った住宅街でありながら、道を挟んだ向かいには学校があって、静けさと学生のにぎわいがほどよく混ざり合うエリアです。大通りに出ればロードサイドのお店も並んでいて、日常の買い物や外食にも困りません。 今回の主役は、40平米オーバーのルーフバルコニー。ただ広いだけではなく、 ・最上階の独立した位置にあること ・見晴らしがいいこと ・リビングの延長上にフラットに出られること ・水栓付きで、愛する植物を育てれること ・朝日が気持ちいい東向きであること と、ルーバル界でもなかなかのハイスペック揃いです。 室内は3LDK。今回の募集はクリーニングのみで、内装は現況のままのお引き渡し。床の傷やクロスの経年感も、そのまま受け取っていただく前提です。 DIYや工事は、仕上がりイメージを事前に相談する許可制ですが、オーナーさんのスタンスは「いい感じに使ってもらえるなら」という空気感です。 床をどう整えるか、どこまで手を入れるか。ルーフバルコニーをリビングの延長にするのか、思いきって外の居間として育てるのか。考える時間も、手を動かす時間も、この住まいの一部になりそうです。 せっかくなら、このルーフバルコニーを余らせるより、うまく手懐けるくらいの気持ちで。 大橋の空の下、自分なりの棲家を、ゆっくり育ててみませんか。 ※DIYは許可制で可能です。 ※家具家電は撤去での引き渡しです。 |
![]() |
|
| 独立しているため、周りの目線も気になりません。 |
|
| 東向きで朝日を楽しめそう。 |
|
| DIYも可能です。 |
|
| 窓面も大きいです。 |
|
|
| 賃料 | 11万2,000円 | 専有面積 | 66.80㎡ |
| 敷金 | なし | 礼金 | 2ヶ月 |
| 償却 | なし | 管理費 | なし |
| 所在地 | 福岡市南区向野 | ||
| 交通 |
西鉄大牟田線「大橋」駅 徒歩9分 西鉄大牟田線「高宮」駅 徒歩14分 |
||
| 建物構造 | 鉄筋コンクリート造 5階建て | 所在階 | 5階 |
| 築年 | 1985年 | 取引態様 | 媒介 |
| 設備 | 都市ガス/システムキッチン(3口コンロ)/温水洗浄便座/エレベーター | ||
| 備考 | ペット不可/定期借家契約(期間:3年/再契約:相談)/事務所不可/敷地内駐車場:空き有り(8,000円/月)/駐輪場/校区:福岡市立玉川小学校(409m)、福岡市立春吉中学校(741m)/住居兼事務所可(基本的には住居契約。不特定多数の出入り、登記、看板の設置はNGとなります。)/駅徒歩10分以内/要火災保険契約 | ||
| 情報修正日時 | 2026年1月8日 | 情報更新予定日 | 2026年1月23日 |
あなたにおすすめの物件


