|
|
|
||||||||||||||||||||
水辺の歴史と暮らす |
||||||||||||||||||||||
|
||||||||||||||||||||||
|
||||||||||||||||||||||
|
||||||||||||||||||||||
|
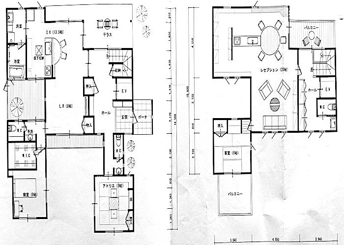
耳をすませば、「待ちぼうけ、待ちぼうけ、ある日せっと〜♪」と船頭さんの歌声が聞こえてきます。ゆっくり、のんびりと進む川下り。掘割(水路)を利用した、柳川ならではの伝統です。 船頭の竿一本による巧みな操船と軽快なトークに盛り上げられながら、水面を渡る柳の風景や白壁の街並みを眺める。柳川市の川下りは、昔から国内外の観光客に親しまれてきた名物となっています。 実はこの水路、かつては飲料水や農業用水として利用され、交通手段としても欠かせない存在でした。そのため川下りは、単なる観光名所ではなく、人々の暮らしと深く結びついた生活の一部だったのです。 その名残として、今も自宅から堀割へ降りる階段が残っています。ちなみに、川下りが営業していない時間帯にサップを楽しむ人もいるのだとか。個人的には「堀割サップ」、なかなか需要がありそうな気がします。 そんな水路沿いに佇むのが、今回ご紹介する戸建です。2階建ての一軒家で、延床面積は192㎡とゆとりある広さ。 2階のリビングはレセプションとして設計されており、友人や客人を招いて賑やかに過ごせる空間となっています。前オーナーはシャンソンがお好きだったそうで、楽器演奏ができるよう防音仕様になっているのも特徴です。 1階はメインの居住空間としてキッチンや水回りを配置。2階にもキッチンがありますが、こちらは来客用とし、1階をプライベート空間として使い分けるのが良さそうです。 和室の畳を外すと現れる掘りごたつ。そこから眺める庭の木々は、四季折々の表情を楽しめ、反対側のテラスに出れば、すぐそばを流れる堀割と、日々の暮らしに静かな潤いを添えてくれます。 水とともに生き、ともに育まれてきた柳川の暮らし。その歴史ある掘割を、日常の風景として抱く住まいです。観光地の賑わいとは一線を画した、穏やかな時間がここには流れています。 水辺のある暮らしに、静かに心を預けてみてはいかがでしょうか。 |
![]() |
|
| 2階のリビング。とてもゆとりある広さです。なんとこちらのお部屋防音になっています。 |
|
| 窓からはお堀が見えます。 |
|
| 2階リビングのキッチン、ちなみに1階にもキッチンがあるので、こちらは来客としていかが? |
|
| 2階リビング横。造作の棚がたくさんあり収納力あります。 |
|
|
| >>大きな地図で見る  |
| 賃料 | 18万円 | 建物面積 | 192.52㎡ |
| 敷金 | なし | 礼金 | 2ヶ月 |
| 償却 | なし | 管理費 | なし |
| 所在地 | 福岡県柳川市新町 | ||
| 交通 | 西鉄天神大牟田線「柳川」駅 徒歩17分 | ||
| 建物構造 | 木造 2階建て | 所在階 | 1-2階 |
| 築年 | 2008年 | 取引態様 | 媒介 |
| 設備 | オール電化/システムキッチン(IHクッキングヒーター)/エアコン/温水洗浄便座/ホームエレベーター/TVモニター付きインターフォン | ||
| 備考 | ペット可(小型犬のみ(賃料+5,000円+礼金1ヶ月))/募集戸数:1戸/民泊不可/店舗不可/住居兼事務所相談可能/校区:柳川市立柳河小学校(750m)、柳川市立柳城中学校(1,200m)/住居兼事務所可/駐車場あり/要火災保険契約 | ||
| 情報修正日時 | 2026年1月22日 | 情報更新予定日 | 2026年2月12日 |
あなたにおすすめの物件


