|   |  住宅  オフィス  店舗・その他 | |||||||||||||||||||||
| "太宰府" 古民家の庭先から | ||||||||||||||||||||||
| 
 | ||||||||||||||||||||||
| 
 | ||||||||||||||||||||||
| 
 | ||||||||||||||||||||||
| 太宰府市の静かな路地沿い、榎社のすぐ横に佇む一軒の古民家を住居兼店舗として募集します。 お隣の榎社は、菅原道真公の時代から受け継がれてきた由緒ある場所。丁寧に手入れされた参道の緑は四季ごとに表情を変え、このまちならではの穏やかな時間を刻み続けています。 建物自体は長い年月を重ねてきたので、全体的に古びてはいますが、柱や梁には当時の職人の息づかいが残り、素材の魅力が随所に光っています。未改装だからこそ、リノベーションやDIYで新たな息吹を吹き込む余白が広がっているのも、この物件ならではの魅力です。 そして、特筆すべきは、庭先に面した窓を開けた先に広がる借景。榎社の豊かな緑を背景に、春の芽吹き、夏の木陰、秋の紅葉、冬の澄んだ空気が、光と風とともに室内にそっと流れ込み空間を創り上げます。 住居と併設した小さな喫茶店として、参拝帰りの人々がひと息つく場所に。あるいは、アトリエやギャラリーとして、創作の息吹をまちに開く場に。そのどれもが、この場所の物語をさらに豊かにしてくれるはずです。 庭越しに揺れる榎社の緑を眺めながら、自分の手で空間をかたちづくる喜び。その先に訪れる人々との新しい時間が重なったとき、太宰府のまちにまたひとつ、新しい物語が芽吹いていきます。 ※現状渡しです。 | 
|  | 
|   | 
| 神社の中に佇む古民家。 | 
|   | 
| 玄関から一番近いお部屋。(流木は撤去します) | 
|   | 
| 現況渡しとなるので、ある程度の改装必須です。 | 
|   | 
| 雑草がのびのびしてますので、草刈り必須です。 | 
|  | 
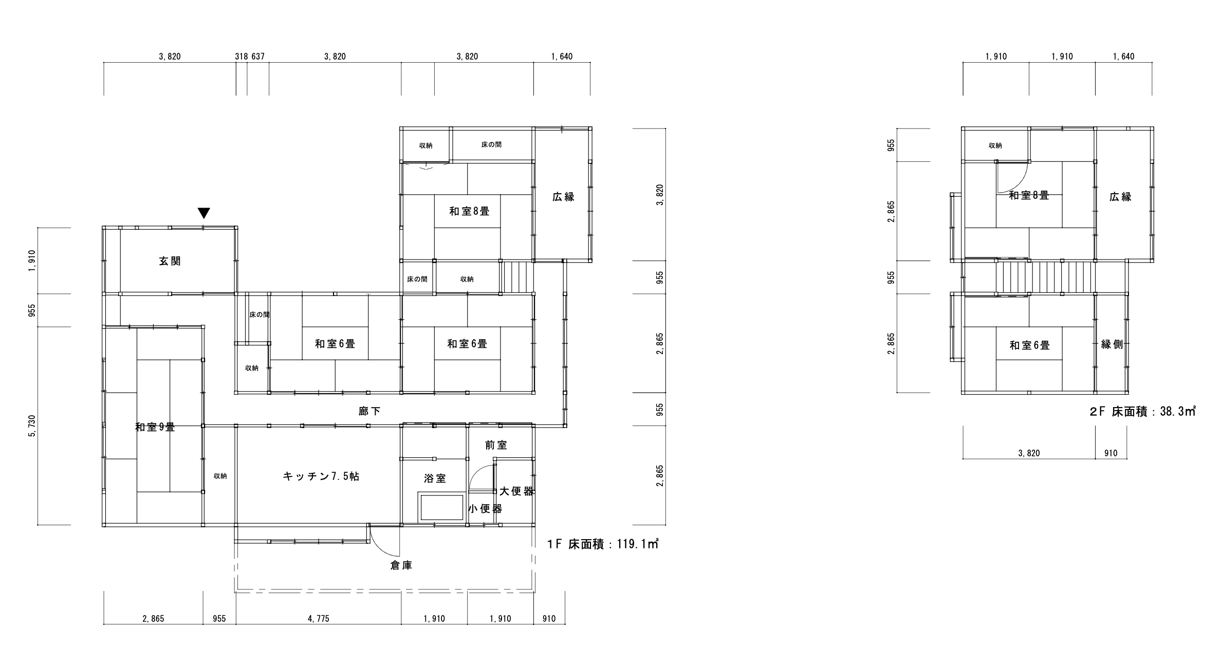
| 賃料 | 11万円(税込) | 建物面積 | 157㎡ | 
| 敷金 | なし | 礼金 | 2ヶ月 | 
| 償却 | なし | 管理費 | なし | 
| 所在地 | 太宰府市朱雀6丁目 | ||
| 交通 | 西鉄天神大牟田線「二日市」駅 徒歩12分 | ||
| 建物構造 | 木造 2階建て | 所在階 | 1階 | 
| 築年 | 築年不詳 | 取引態様 | 媒介 | 
| 設備 | 都市ガス/電気/上下水道/キッチン(ガスコンロ設置可) | ||
| 備考 | ペット不可/定期借家契約(期間:5年/再契約:相談)/募集戸数:1戸/駐車場なし/飲食店可(用途は要相談)/住居兼事務所可/要火災保険契約 | ||
| 情報修正日時 | 2025年9月17日 | 情報更新予定日 | 2025年11月14日 | 
 あなたにおすすめの物件
 あなたにおすすめの物件
 
 
 
 
  
  
  
  
  
  
  
  
  
  
  
  
  
  
  
  
  
  
  
  
  
  
   
   
   
   
   
   
  
  
  
  
  
  
  
  
  
  
  
  
  
  
  
  
  
  
  
   
   
   
   
   
   
   
   
   
   
   
   
   
   
  
  
  
  
  
  
 
  
  
  
  
  
  
  
 ![[団地を楽しむ教科書] 暮らしと。](https://s3-ap-northeast-1.amazonaws.com/rincglobal/common/thmb_kurashito_book.png) 
  
  
  
  
  
  
  
  
  
  
  
  
  
  
  
  
  
  
  
  
  
  
  
  
  
  
  
  
  
  
  
  
  
 