|
|
|
||||||||||||||||||||
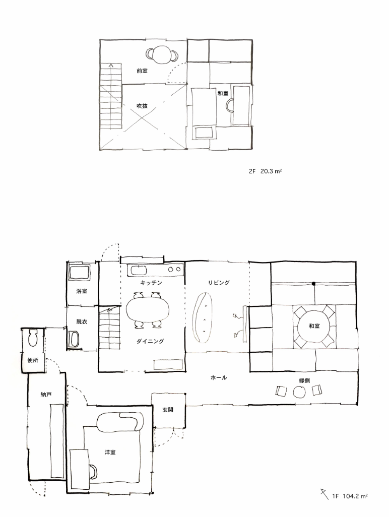
2階、抜いてます。 |
||||||||||||||||||||||
|
||||||||||||||||||||||
|
||||||||||||||||||||||
|
||||||||||||||||||||||
|
2年に一度くらいのペースで、難解な物件を仕入れては、苦しんだり楽しんだりしながら本気のリノベを仕掛けるオーナー。今回の戸建も、そんな流れの中で生まれた一つです。 何度見ても驚くのは、ダイニングの上。もともとは2階の和室だった場所をまるっと抜いています。 なので2階に上がって、廊下の延長のような、ふすまかな?と思う場所を開けると...そこは床じゃない!そのまま下に抜けている! 素人ではなかなかここまで思い切れないし、そもそもやろうとも思わないかもしれない。リノベ経験豊富なオーナーならではの発想だと思います。 ただ奇抜なだけじゃなくて、光の入り方や空間の抜け方がきちんと整えられていて、ダイニングには明るさと天井の高さによる開放感が生まれています。横の元和室ともつながって、空間としてはゆったりとしたLDKに。この大胆さが、ちゃんと住み心地に落ち着いているのが面白いところです。 もとの素材をできるだけ残しながら、すっきりとした塗り壁に、床は桜の無垢材。このバランスがとっても素敵。 広くて日当たりのいい広縁も健在。庭木を整理したことで光の入り方がぐっと良くなって、椅子を置いてぼんやりする場所として、ちゃんと機能するようになっています。 外構も手が入っていて、敷地内に駐車スペースも確保済み。個人的には、この庭で何もしないのはちょっともったいない。BBQでも、家庭菜園でも、ちゃんと楽しみたいところ。 もちろん、2階の眺望と日当たりはそのまま。床を抜いた部分には渡し板があって、季節に応じて光の入り方を調整したり、植物や照明を吊ったりと、住みながら少しずつ手を加えていくのも楽しそう。 立地にまつわる注意点を少し。勾配のあるエリアにしてはラスト20mのみやや坂くらいなものの、そのラストの間口が極端に狭いので、敷地内に駐車スペースに辿り着けるのは軽自動車、もしくは小型車になります。 最寄りは桜坂駅ですが、アップダウンを考えると六本松をメインに使うのが良さそう。お店も充実してますし、自転車があれば、ぐっと楽になります。 用途としては、住居だけでなく、店舗やオフィスとしての利用もご相談可能(※店舗部分は50㎡以下・重飲食不可)。 DIYについても事前申請のうえ、内容の承諾が得られれば原状回復不要。 こんなにおもしろくて、使い方の自由度も高いなんて! さぁどんな人が活かしてくれるのでしょうか。お会いできるのを楽しみにしています。 ※民泊利用不可 ※店舗・オフィス利用の場合は消費税が別途かかります。 ※店舗利用は50㎡以下(重飲食不可) |
![]() |
|
| 見てほしい、この光。 |
|
| ダイニング横の和室もつなげて、床は桜の無垢。 |
|
| 長くて明るい広縁。ちょっとした一部屋みたい。 |
|
| 敷地全貌。広い! |
|
|
| 賃料 | 16万5,000円 | 専有面積 | 124.50㎡ |
| 敷金 | なし | 礼金 | 2ヶ月 |
| 償却 | なし | 管理費 | なし |
| 所在地 | 福岡市中央区谷 | ||
| 交通 | 地下鉄七隈線「桜坂」駅 徒歩8分 | ||
| 建物構造 | 木造 2階建て | 所在階 | 1-2階 |
| 築年 | 1958年 | 取引態様 | 媒介 |
| 設備 | 都市ガス/システムキッチン(3口コンロ)//温水洗浄便座/宅配ボックス | ||
| 備考 | ペット可(中型犬まで、猫は不可)/定期借家契約(期間:3年/再契約:相談)/募集戸数:1戸/校区:福岡市立草ケ江小学校(1,000m)、福岡市立城西中学校(1,700m)/住居兼事務所可/駐車場あり(軽自動車、小型車に限る)/駅徒歩10分以内/要火災保険契約 | ||
| 情報修正日時 | 2026年4月6日 | 情報更新予定日 | 2026年4月24日 |
あなたにおすすめの物件


