|
|
|
||||||||||||||||||||
大名、ナナメ主義 |
||||||||||||||||||||||
|
||||||||||||||||||||||
|
||||||||||||||||||||||
|
||||||||||||||||||||||
|
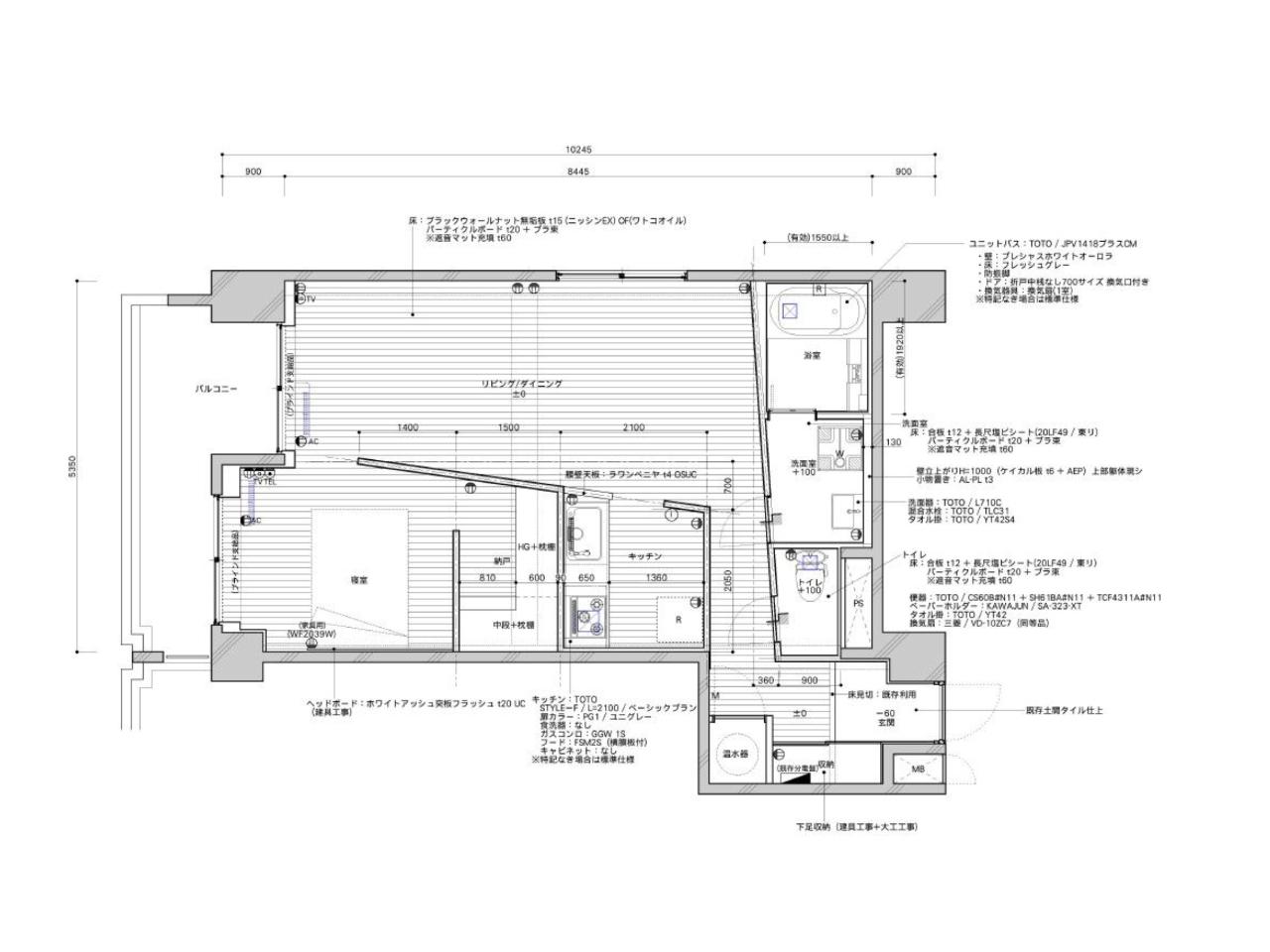
舞台は大名、明治通り沿いに佇むレトロなマンション。 立地で言えば、赤坂・天神・薬院大通までも徒歩圏内という、まさに福岡の中心部。常に人が行き来する、街の体温がダイレクトに伝わるエリアです。 さて、現地に入った瞬間、あれ?と少しだけ身体が戸惑いました。まっすぐ歩いているはずなのに、どこかふわっとした感覚。その謎は図面を見て解けました。なんと、間仕切り壁も水回りの壁も、ナナメに角度を振りながら組み立てられているんです。 ソファはどこに置く? ラグは角度に合わせる? ダイニングテーブルは壁に並行? ...それとも、ナナメに身を任せる? 「正解が一つじゃない」って、なんだかワクワクしてきませんか。 家具の配置ひとつで部屋のキャラが変わる、住み手のセンスが試される間取りです。 室内は、躯体あらわしの壁にブラックウォールナットの無垢床。 ラワン材を使った、ほんのりチェリーっぽい色味の間仕切り。 まさにリノベーション物件らしい素材感ですが、決してやりすぎていない。ラフさと、アレンジできる余白が同居する、じつに面白い物件です。 そしてうれしいのが、事務所利用もOKなところ。仕事場こそ、これくらいの遊びがあったほうが面白い。来客のたびに「え、この壁どうなってるんですか?」なんて会話から打ち合わせが始まる。そんな遊び心のあるワークスペース、大いにアリだと思います。 無難でまとめるのは、ちょっともったいない。 むしろこの「ズレ」に身を任せるのが、この部屋の正しい嗜み方。 一度ハマると、もう直角の生活には戻れないかもしれません。 |
![]() |
|
| ウォールナットの無垢床、ラワン材の間仕切り、コンクリート剥き出しの壁。素材感を楽しめるリノベーション物件です。 |
|
| 間仕切り壁の奥は寝室スペース。 |
|
| 間仕切り壁には、かわいらしい落書きの名残がありますが、きれいに整えられる予定です。 |
|
| 鳩よけネットが惜しいですが、眺望は抜けてます! |
|
|
| 賃料 | 15万円 | 専有面積 | 56.23㎡ |
| 敷金 | なし | 礼金 | 2.5ヶ月 |
| 償却 | なし | 管理費 | なし |
| 所在地 | 福岡市中央区大名 | ||
| 交通 |
地下鉄空港線「赤坂」駅 徒歩9分 地下鉄七隈線「薬院大通」駅 徒歩10分 西鉄大牟田線「西鉄福岡(天神)」駅 徒歩12分 |
||
| 建物構造 | 鉄骨鉄筋コンクリート造 10階建て | 所在階 | 10階 |
| 築年 | 1982年 | 取引態様 | 媒介 |
| 設備 | 都市ガス/システムキッチン(3口コンロ)/温水洗浄便座/ウォークインクローゼット/TVモニター付きインターフォン/エレベーター/防犯カメラ | ||
| 備考 | 雑費:1,100円/火災保険料:1,300円/保証料:1,200円/募集戸数:1戸/ペット不可/事務所可(賃料+消費税)/敷地内駐車場:空き無/駐輪場/校区:福岡市立舞鶴小学校(1,200m)、福岡市立舞鶴中学校(1,120m)/駅徒歩10分以内/要火災保険契約 | ||
| 情報修正日時 | 2026年2月13日 | 情報更新予定日 | 2026年2月28日 |
あなたにおすすめの物件


