|
|
|
||||||||||||||||||||
大濠に吹く新たな風 |
||||||||||||||||||||||
|
||||||||||||||||||||||
|
||||||||||||||||||||||
|
||||||||||||||||||||||
|
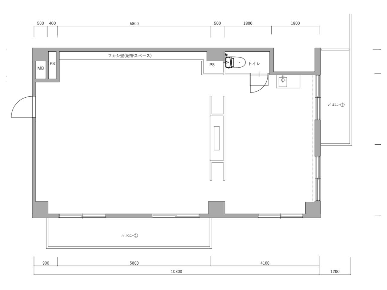
福岡市民のオアシス的存在の大濠公園。その魅力はもはや語るまでもありませんが、周辺にはハイセンスなセレクトショップや隠れ家的な名店がちらほら。 特に公園の西側エリアは、ゆったりと時が流れているように感じます。それは公園の豊かな自然の力なのか、はたまた目に見えない不思議な何かなのか、真相は分かりませんが、その空気感に自然と魅了される人も少なくないはず。 そんなエリアにあるレトロマンション。異国の風を感じるレンガ調タイルの外観には築浅マンションには出せないベテランの風格。1階には人気な飲食店が入居しており、活気に溢れています。 今回は2階の区画に空きがでました。当サイトでもよく紹介している建築士さんが手掛けております。 内装はモルタル床に白塗装の仕上げです。通常モルタル床は、のぺっとした印象になりがちですが、正方形の目地がアクセントになっているのがポイント。無骨さもありながらも上品であるというこの塩梅に痺れました。 ギャラリーやスタジオ、ショールームなどを想定したスタイリッシュな仕様。あくまで想定なので、何か素敵なアイデアがある方は事前にご相談ください。バイオエタノールを使った暖炉も導入されており、空間のアクセントとしてひと役買ってくれています。 ちなみに小型犬か猫であれば飼育可能なので、ペットと共に暮らし働くこともできちゃいます。 仕事やアイデアに行き詰まった時には、歩いて1分の大濠公園が癒してくれることでしょう。この環境を日常に、クリエイティブな新風を吹きこんでもらいたいです。 ※写真は前回募集時のもの。現況はトイレ横に洗面台が設置されています。 ※基本は住居契約となります。 ※不特定多数の出入りの業種はできません。 ※ただいま居住中の為、内覧の際は日程調整が必要になります。なお、2026年4月上旬での入居開始を予定しております。 |
![]() |
|
| この街に新たな風を吹き起こせ。 |
|
| 大濠公園から徒歩1分の場所にあります。 |
|
| ギャラリーやスタジオ、ショールームなどを想定した仕様です。 |
|
| レンガタイルの暖炉が空間のポイント。 |
|
|
| 賃料 | 19万円 | 専有面積 | 63.38㎡ |
| 敷金 | 1ヶ月 | 礼金 | 1ヶ月 |
| 償却 | なし | 共益費 | 30,000円 |
| 所在地 | 福岡市中央区大濠 | ||
| 交通 | 地下鉄七隈線「六本松」駅 徒歩10分 | ||
| 建物構造 | 鉄骨鉄筋コンクリート造/陸屋根 4階建て | 所在階 | 2階 |
| 築年 | 1979年 | 取引態様 | 媒介 |
| 設備 | キッチン(IHコンロ設置可)/バイオエタノール暖炉/TVモニター付きインターフォン/エレベータ | ||
| 備考 | ペット可(小型犬、猫1匹まで)/定期借家契約(期間:5年)/事務所可(住居契約となります。)/敷地内駐車場:無/住居兼事務所可/駅徒歩10分以内/要火災保険契約 | ||
| 情報修正日時 | 2025年11月14日 | 情報更新予定日 | 2025年11月30日 |
あなたにおすすめの物件


